多功能吸卸料天車
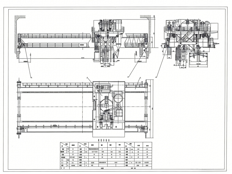
產品介紹多功能吸卸料天車是一款集成機械、氣動、環(huán)保與自動控制等技術的專用起重設備,核心應用于碳素焙燒車間,能一站式完成裝爐、填料、吸料、出爐等多道工序,還可輔助吊運車間設備,大幅降低人工勞動強度,以下是詳細介紹:核心結構大車:即設備的橋架結構,可沿車間縱向軌道運行。其配置電動葫蘆,專門負責燃燒架、吹風管等車間零散設備的輔助吊運工作,為車間日常維護和額外作業(yè)提供便利。小車:作為整機核心部件,集中了主
- 跨度: |
- 起重量: |
- 起升高度: 可定制
關閉
產品咨詢
客服熱線:400-700-9997

















